本系列消聲器為小孔噴注放散消聲器
二、適用范圍
適用于降低小型鍋爐排放蒸汽時產生的動力性噪聲。
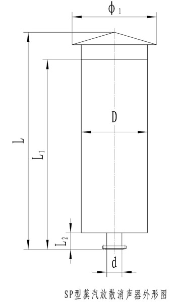
三、規格、性能、外形尺寸
型 號 | 消 聲 器 技 術 參 數 | 外 形 尺 寸 (mm) | 進口法蘭標準 | ||||||||
風 量t/h | 壓 力MPa | 溫 度 ℃ |
消聲量 dB(A) |
L | L1 | L2 | φ1 | D | d | JB81-94 | |
SP-1 | 1 | 2.0 | 350 | 35 | 730 | 580 | 100 | 300 | 159 | 38 | PN2.5DN32 |
SP-2 | 2 | 2.0 | 350 | 35 | 772 | 610 | 100 | 350 | 219 | 57 | PN2.5DN50 |
SP-3 | 4 | 2.0 | 350 | 35 | 1140 | 935 | 150 | 450 | 298 | 76 | PN2.5DN65 |
SP-4 | 6 | 2.0 | 350 | 35 | 1251 | 1035 | 150 | 500 | 351 | 89 | PN2.5DN80 |
SP-5 | 8 | 2.0 | 350 | 35 | 1365 | 1145 | 150 | 520 | 377 | 108 | PN2.5DN100 |
SP-6 | 10 | 2.0 | 350 | 35 | 1625 | 1385 | 150 | 600 | 426 | 133 | PN2.5DN125 |
SP-7 | 16 | 2.0 | 350 | 35 | 1788 | 1525 | 150 | 700 | 498 | 159 | PN2.5DN150 |
